Массив 122 м2 №936

Цена строительства от 5 500 000 ₽* * Стоимость не является окончательной
Заявка на консультацию
  • Общая площадь 110 м2
  • Материал стен Каркасно-панельные
  • Количество этажей 1
  • Подвал Нет
  • Мансарда без мансарды
  • Гараж Нет
  • Терраса Нет
  • Проживание Круглогодичное
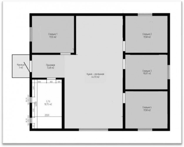
  • Количество комнат 5
  • Количество спален 4
  • Количество санузлов 1
  • Вид проекта дом
  • Застройщик МоноЛит
  • Отделка фасада Лицевой кирпич
  • Крыша Двускатная
  • Можно купить домокомплект Да
  • Модульный тип строения Нет
Планировки
Описание проекта

Массив 122 м² - это простор и комфорт для большой семьи Просторное жилище площадью 122 квадратных метра — это идеальное решение для тех, кто ценит комфорт и функциональность в каждом уголке дома. Продуманная планировка позволяет создать уютное пространство для всей семьи.

Дом 122 м² — это гармоничное сочетание практичности, комфорта и современного дизайна, создающее идеальные условия для счастливой жизни вашей семьи. Здесь каждый день будет наполнен уютом и теплом домашнего очага.

Комплектации:

ДОМОКОМПЛЕКТ 1 920 000 р.

СТАНДАРТ 5 500 000 р.

КОМФОРТ 6 500 000 р.

КОМФОРТ+ 8 500 000 р.

Вас может заинтересовать
Вас может заинтересовать

Выбор местоположения

Задать вопрос / написать нам

E-mail: domgis@mail.ru

Мы свяжемся с Вами в течение дня.

Тех. поддержка
Предмет обращения:
Тукущая страница

Мы свяжемся с Вами в течение дня.

Уведомление
Предмет обращения:
Тукущая страница
Обратный звонок
Обратный звонок
Выберите ваш город
Пожаловаться

Объявление опубликовано.
Изменения сохранены

Период публикации - бессрочный, при условии подтверждения актуальности каждые 50 дней. Уведомления будут отправляться на Вашу электронную почту.

Выберите причину снятия с публикации

Снятые с публикации объявления не участвуют в поиске и недоступны для подробного просмотра.

Для повторной публикации нажмите «Вернуть в публикацию»